Courchevel, Savoie, France
Maison de village Mr Mathelet
M. Mathelet a hérité d'une maison de village à Tincave en Savoie Tarentaise. Le projet est un investissement locatif et une maison secondaire. Il m'a demandé de repenser toute sa maison.
Un projet à taille humaine
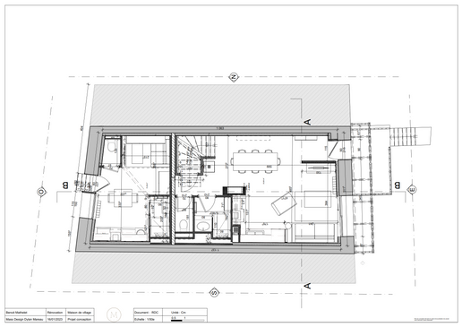
Une maison de village, située dans un coin isolé de la Tarentaise, c'est un projet qui m'enthousiasme. Monsieur Mathelet a hérité de cette propriété, dont l'intérieur est resté dans son état d'origine, et elle mérite une importante rénovation. Il y a de nombreuses cloisons superflues, un système de chauffage défectueux, et plusieurs autres problématiques ; en clair, il y a beaucoup de travail à faire.
Nous nous engageons donc dans une rénovation complète avec une étude énergétique approfondie et une analyse de la structure réalisée par nos ingénieurs d'ETBA. Nous adoptons une démarche créative en élaborant des zonings, des planches tendances, et bien sûr, l'intégralité du projet est conçue en plan et en 3D. Le processus de conception a duré environ un an, et il a été très agréable de travailler dans ces conditions qui nous ont permis de prendre le temps nécessaire pour réfléchir.







