Courchevel, Savoie, France
La ferme des Gabelins
La ferme des Gabelins a fait appel aux qualités créatives du Buro pour designer la nouvelle construction dans leur domaine.
Interdis de dessiné
La Ferme des Gabelins est un lieu exceptionnel pour vos séminaires, mariages et événements. Avec une vaste étendue de terrain, plusieurs bâtiments d'accueil et un service traiteur de qualité, elle offre un cadre idéal.
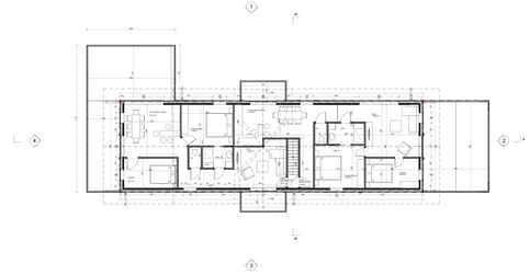
Ils m'ont sollicité pour la conception de leur nouveau bâtiment de 300 m², entièrement neuf. L'ancien a été démoli pour laisser place à une construction flambant neuve.
Le programme est ambitieux, comprenant un laboratoire de boucherie, un espace d'accueil client et des zones de stockage au rez-de-chaussée. Au premier étage, nous avons élaboré deux appartements de type T3, offrant à chacun la possibilité de profiter de lucarnes pendantes qui apportent lumière et hauteur sous plafond.
Normalement, je suis limité à déposer des permis pour des bâtiments de moins de 150 m². Cependant, Julien Liseron, le client, souhaitait que notre bureau soit responsable de la conception de son bâtiment, manifestement séduit par notre style. Nous avons des architectes associés qui nous ont permis de finaliser le projet du point de vue administratif en mairie.




